planung

Sie werden von der ersten Projektidee, über die Baubewilligung, dem Ausführungsplan, zur Bau- und Projektleitung, bis zum Ende des Bauprozesses hinweg mit viel Leidenschaft und Erfahrung beraten und begleitet. Ob Neu- oder Umbauten. Wir begleiten sie von der Projektidee bis zur Ausführung. Die Planung wird in verschiedene Phasen unterteilt. Am Anfang steht ihre Idee – wir setzen sie um. Zu Beginn der Zusammenarbeit geht es darum, die Anliegen des Kunden zu verstehen und die Ideen zu erfassen.

Projektplanung

In der ersten Phase planen und erstellen wir ihr Bauvorhaben nach ihren Bedürfnissen. Wir beraten und planen für sie bis zur Baubewilligung.

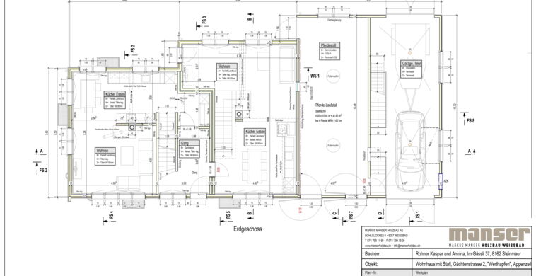
Ausführungsplanung

In diesem Schritt werden ausführliche Planunterlagen für alle Handwerker erstellt. Dies bildet die Grundlage für alle Beteiligten am Bau.

Bauleitung

Für die Ausführung der Bauarbeiten, arbeiten wir gerne mit lokalen Firmen zusammen und koordinieren die Abläufe.